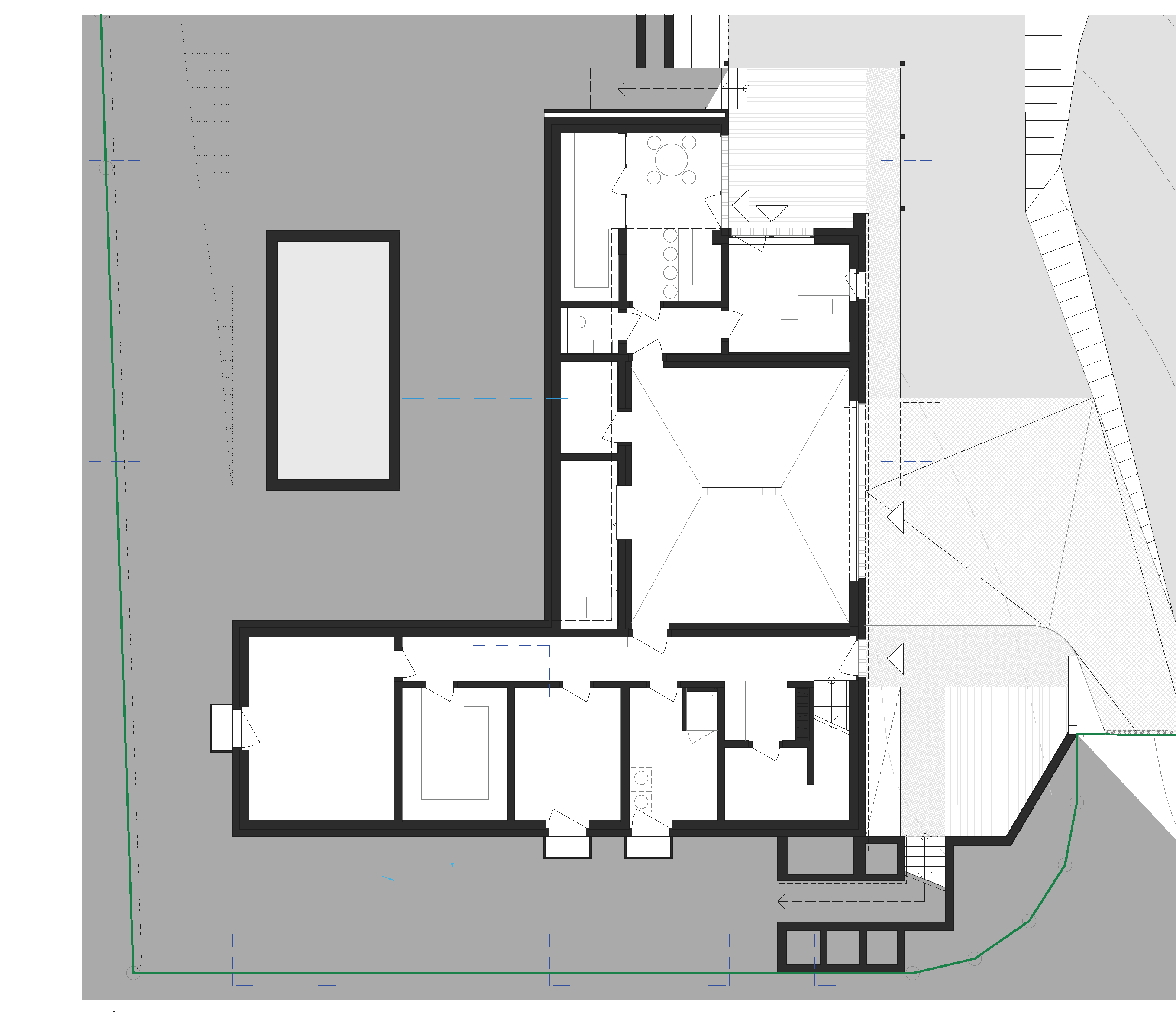
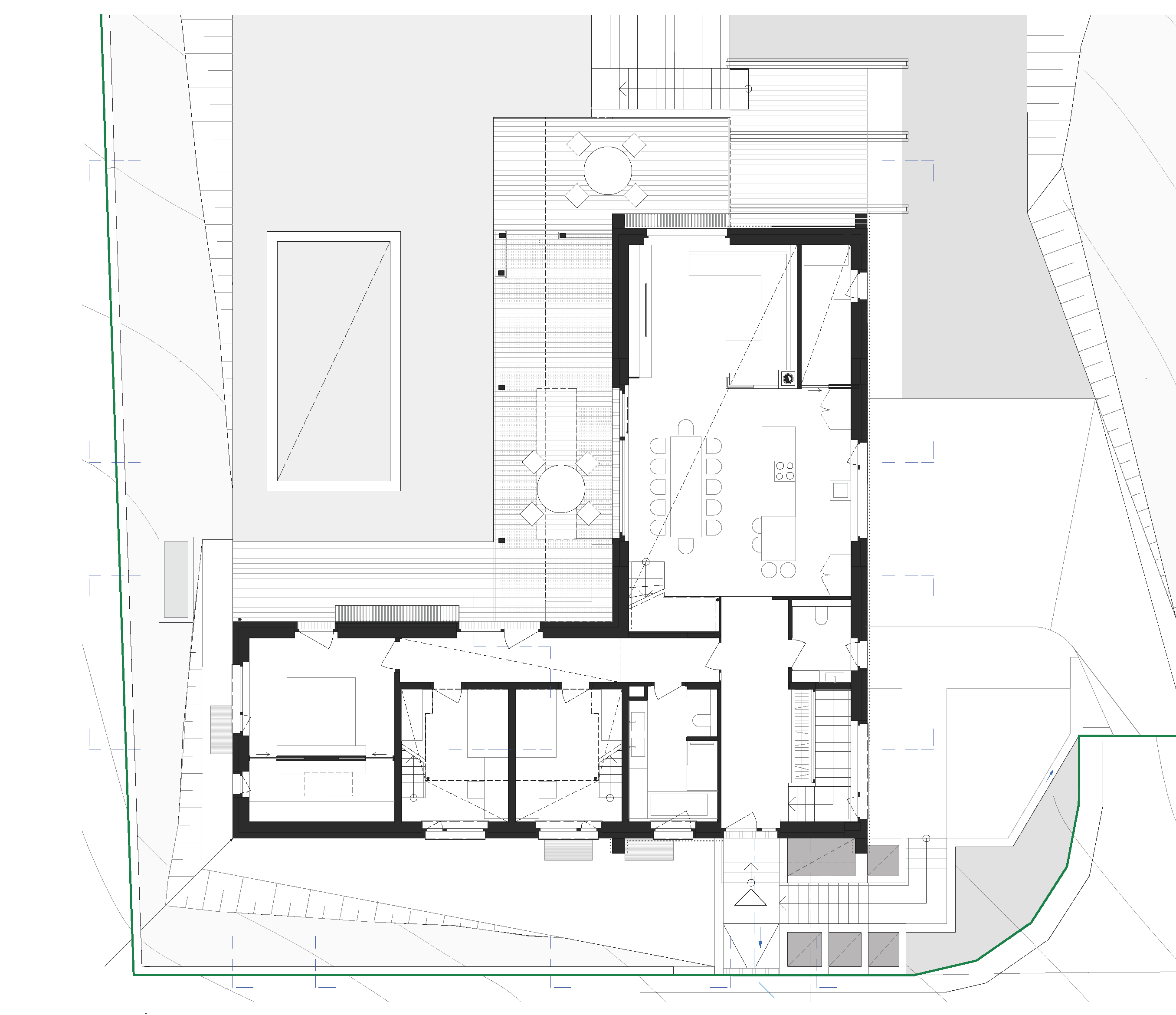
Neubau eines großen privaten Wohnhauses für eine Familie in leichter Hanglage am Ortsrand von Pöllau.
Das Gebäude umschließt mit zwei Flügeln L-förmig einen privaten Innenbereich, der nach Nordwesten hin orientiert ist. Vom Wohnbereich und den Schlafzimmern aus kann dieser Außenbereich mit seiner überdeckten Terasse und einem großen Pool ebenerdig betreten werden.
Die beiden Flügel sind mit unterschiedlich hohen Satteldächern gedeckt, deren Form im Innern ablesbar ist. Die daraus resultierende Raumhöhe wird in den Kinderzimmern und im Wohnbereich für die Schaffung von hochgelegenen Nutzbereichen (Emporen) genutzt.
Im Kellersockel, der nach Osten und Norden hin frei liegt, werden Nebenräume und ein Büro samt Besprechungsraum untergebracht.
Haus RLS | Neubau
© Andreas Zeese
© Andreas Zeese
© Andreas Zeese
© Andreas Zeese
© Andreas Zeese
© Andreas Zeese
© Andreas Zeese
© Andreas Zeese
© Andreas Zeese
© Andreas Zeese
© Andreas Zeese
© Andreas Zeese
© Andreas Zeese
© Andreas Zeese
© Andreas Zeese